Description
We've proudly managed this property for the past three years, and the income growth tells a compelling story. In 2024, it was rented at $800 per week. Fast forward to 2026, and it is returning $975 per week through to the end of the year.
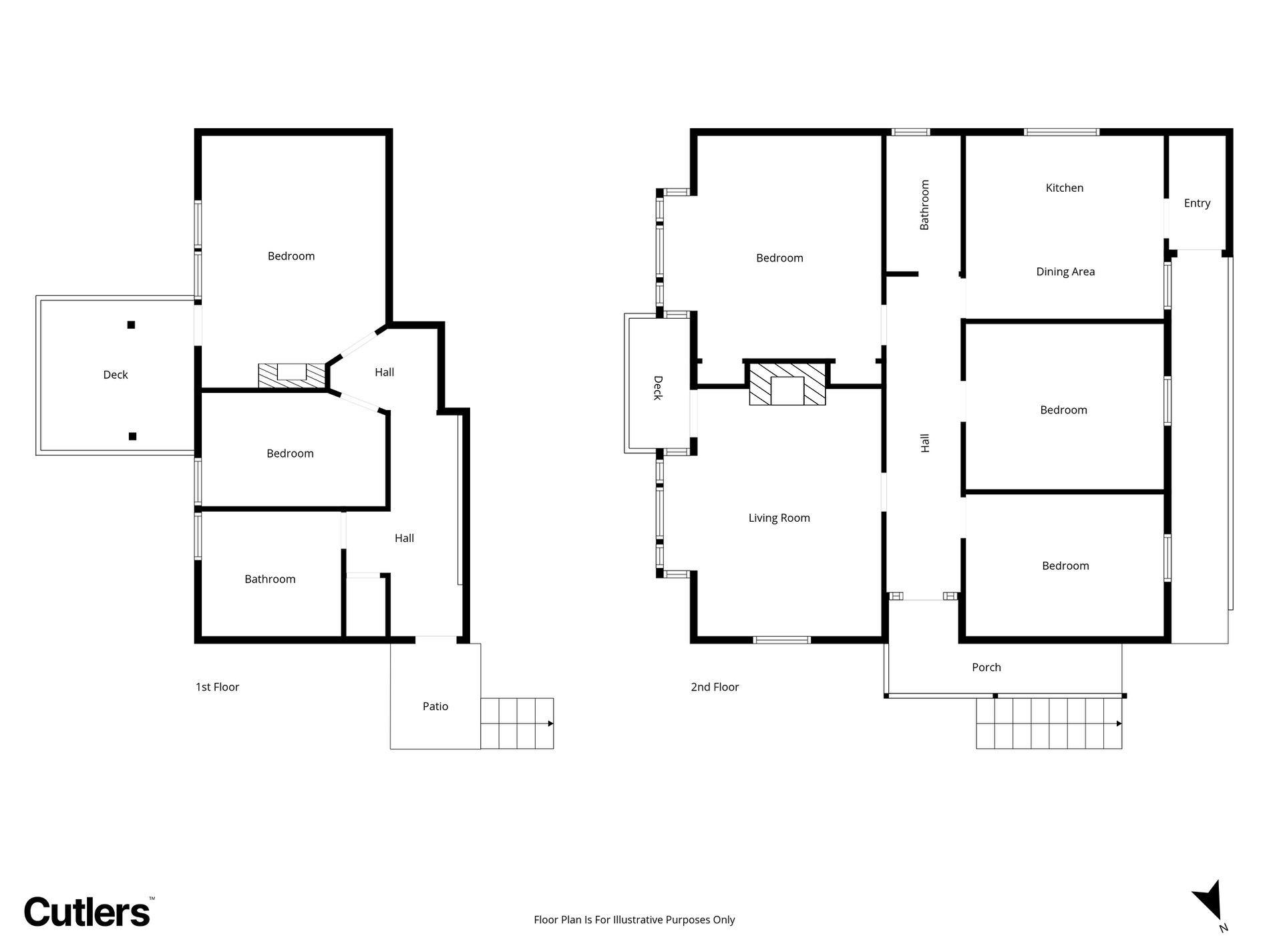
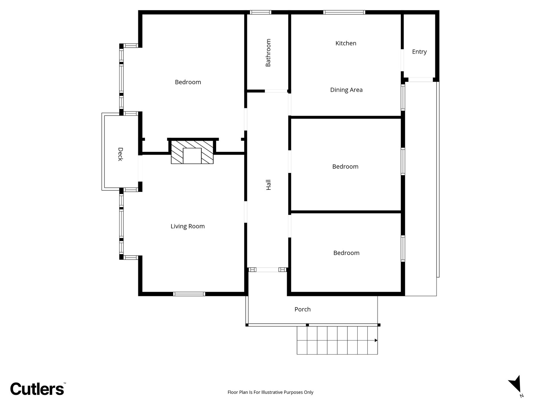
That's a significant uplift in a short timeframe, reinforcing this property's position as a proven, high-performing investment in the tightly held North Dunedin area. Recent upgrades have been completed to the lower-level bedrooms and bathroom, including freshly painted walls, the installation of a new heat pump, and new carpet throughout the home.
There is still potential for further improvements to the upstairs bedrooms, along with modern upgrades to the kitchen and bathroom, which would significantly enhance both rental appeal and overall property value.
With a strong rental track record, established tenant demand, and reliable income growth, this represents a high-yielding investment opportunity in a premium location.
Key features:
- New carpet installed throughout the home in 2025
- HRV system installed
- Upgrades to the bathroom and two downstairs bedrooms, plus a new heat pump
- Wood burner and heat pump upstairs

















































